| 価格 | 37,800万円値下がり ![]() |
||||||
|---|---|---|---|---|---|---|---|
| 所在地 | 東京都港区白金1丁目
この地域周辺の物件を見る |
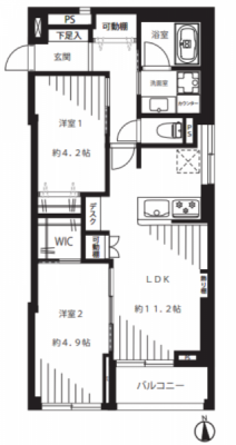
専有面積 | 76u | 間取り | 2LDK (-) | ||
| 交通 | 東京メトロ南北線 白金高輪/徒歩3分
都営三田線 白金高輪/徒歩3分 都営浅草線 泉岳寺/徒歩15分 |
管理費等 | 29,365円 | 修繕積立金 | 9,804円 | 所在階/階数 | 12階/地上45階 地下1階建 | 築年月 | 2023年2月築 | バルコニー面積 | 7m² |
電話をかける(携帯・PHS可)
0120-878-011
「ホームページを見た」とお伝え下さい。
お問い合わせ番号をお伝えください
RHS-232924173
| 特徴 |
|
|---|---|
| セールスコメント | 76平米の収納豊富な2LDK、LDには床暖房付きで快適に暮らせる空間。 |
| 採光面 | 北 | 取引態様 | 仲介 |
|---|---|---|---|
| 現況 | 空家 | 引渡し | 相談 |
| 総戸数 | 1269戸 | 構造 | RC造 |
| テラス面積 | - | 専用庭面積 | - |
| 駐車場 | 空無 | 駐輪場 | - |
| 建物権利 | - | 土地権利 | 所有権 |
| 用途地域 | - - - | 管理態様 | 管理形態:日勤(全部委託) 管理組合:- 管理会社:- |
| 小学校区 | 港区立白金の丘学園白金の丘小学校 (東京都港区) この学区の他の物件を見る |
中学校区 | 白金の丘学園白金の丘中学校 (東京都港区) この学区の他の物件を見る |
| 情報更新日 | 2025年11月07日 | 次回更新日 | 2025年11月21日 |
電話をかける(携帯・PHS可)
0120-878-011
「ホームページを見た」とお伝え下さい。
お問い合わせ番号をお伝えください
RHS-232924173
| 年利率 | % |
||
|---|---|---|---|
| ボーナス払い | 返済年数 | ||
| 頭金 | 直接入力する | 万円 | |

毎月のご返済額 |
ボーナス(×年2回) |
物件価格37,800万円 |
電話でお問い合わせ
センチュリー21プレミアムライフ
|
電話をかける 0120-878-011 ※「ホームページを見た」とお伝えください。 |
お問い合わせ番号をお伝えください RHS-232924173 |
|---|
白金高輪駅徒歩3分、白金エリアのシンボルタワーレジデンス。
東京タワーを望む眺望と約21.4帖の広々LDKが日常を彩る。